Wie viel Platz brauche ich zwischen dem Reifen und dem Radhaus?
Wie viel Platz brauche ich zwischen dem Reifen und dem Radhaus?
05 Dez. 2020 19:46
Hallo, ich bin gerade beim Konstruieren der Box, und bin mir nicht sicher, ob der Abstand zwischen dem Reifen und dem Radhaus mit 9 cm ausreichend ist. Ich denke da an den Einsatz mit Schneeketten, oder extrem Schlamm, habt Ihr damit Erfahrung?
Meine Zeichnung ist noch im Entwurfstadion . . .
Meine Zeichnung ist noch im Entwurfstadion . . .
Bitte Anmelden oder Registrieren um der Konversation beizutreten.
- Harty
-
- Benutzer
-
- Steyr 12M18
- Beiträge: 550
- Thanks: 147
Re: Wie viel Platz brauche ich zwischen dem Reifen und dem Radhaus?
06 Dez. 2020 00:40
deine gewählten 9cm erscheinen mir etwas knapp.
Im Bereich der Federn sind Anschläge oder Begrenzer, welche bei einem Federbruch die Achse fixieren sollen.
Miß diesen Abstand und addiere einen Sicherungsbetrag (ca. 20mm oder mehr) und du hast den notwendigen Abstand OK Rad zum Radhaus. Dabei auch auf hervor stehende Schraubköpfe im Radhaus achten.
Im Bereich der Federn sind Anschläge oder Begrenzer, welche bei einem Federbruch die Achse fixieren sollen.
Miß diesen Abstand und addiere einen Sicherungsbetrag (ca. 20mm oder mehr) und du hast den notwendigen Abstand OK Rad zum Radhaus. Dabei auch auf hervor stehende Schraubköpfe im Radhaus achten.
Bitte Anmelden oder Registrieren um der Konversation beizutreten.
- MiCo
-
- Benutzer
-
- Beiträge: 244
- Thanks: 100
Re: Wie viel Platz brauche ich zwischen dem Reifen und dem Radhaus?
06 Dez. 2020 10:13
Moin Joe,
habe gerade mal nachgemessen. Bei uns sind es 19 cm. Bei Übernahme des 12M18 war es eine Handbreite, ca. 10 cm. Bei Excap wurde darauf hingewiesen, dass bei dem geringen Abstand der Reifen auf den Kabinenboden durchschlagen könne...also Federung verstärkt. Sieht jetzt auch besser aus, weil der "Arsch" nicht mehr durchhängt.
Gruß MiCo
habe gerade mal nachgemessen. Bei uns sind es 19 cm. Bei Übernahme des 12M18 war es eine Handbreite, ca. 10 cm. Bei Excap wurde darauf hingewiesen, dass bei dem geringen Abstand der Reifen auf den Kabinenboden durchschlagen könne...also Federung verstärkt. Sieht jetzt auch besser aus, weil der "Arsch" nicht mehr durchhängt.
Gruß MiCo
Bitte Anmelden oder Registrieren um der Konversation beizutreten.
- Faabje
-
- Benutzer
-
- Beiträge: 142
- Thanks: 65
Re: Wie viel Platz brauche ich zwischen dem Reifen und dem Radhaus?
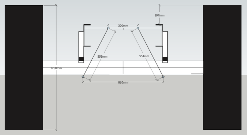
06 Dez. 2020 20:32 - 07 Dez. 2020 10:28
So sieht das bei mir aus. Mit 14“ komplett eingefedert ist der abstand zwischen Hauptrahmen und Oberkante reifen 197mm.
Letzte Änderung: 07 Dez. 2020 10:28 von Faabje.
Bitte Anmelden oder Registrieren um der Konversation beizutreten.
- Darkwave
-
- Benutzer
-
- Beiträge: 727
- Thanks: 266
Re: Wie viel Platz brauche ich zwischen dem Reifen und dem Radhaus?
06 Dez. 2020 21:50 - 06 Dez. 2020 21:50
Miß doch einfach nach wie lang Deine Schäkel an den Blattfedern der Hinterachse sind.
Das ist der Maximale Weg, den Dein Rad sich bewegen kann.
Addiere da ein paar cm hinzu und Du bist auf der sicheren Seite.
Solltest Du die Reifengröße andern passt das dann aber nicht mehr
Frank
Das ist der Maximale Weg, den Dein Rad sich bewegen kann.
Addiere da ein paar cm hinzu und Du bist auf der sicheren Seite.
Solltest Du die Reifengröße andern passt das dann aber nicht mehr
Frank
Letzte Änderung: 06 Dez. 2020 21:50 von Darkwave.
Bitte Anmelden oder Registrieren um der Konversation beizutreten.
- Beestone
-
- Benutzer
-
- Beiträge: 811
- Thanks: 247
Re: Wie viel Platz brauche ich zwischen dem Reifen und dem Radhaus?
06 Dez. 2020 22:47
Vergiss auch nicht noch ein paar mm oder cm als Sicherheit dazuzurechnen bezgl. Verschränkung!
Ansonsten gilt das was oben steht bezgl. Federn, Begrenzung und Anschlag ...
Einfache Abhilfe, wird gern gemacht: Klötze unter die Federn ... damit legst Du höher ... brauchst aber neue Briden.
LG, Andreas
Ansonsten gilt das was oben steht bezgl. Federn, Begrenzung und Anschlag ...
Einfache Abhilfe, wird gern gemacht: Klötze unter die Federn ... damit legst Du höher ... brauchst aber neue Briden.
LG, Andreas
Gemeinschaft bedarf der Bereitschaft anderen zuzuhören und die eigene Meinung nicht für die einzig wahre zu halten ...
Bitte Anmelden oder Registrieren um der Konversation beizutreten.
Ladezeit der Seite: 0.989 Sekunden