wir habens geschafft!! unser 12m18
- prahl
-
Autor
- Benutzer
-
- Beiträge: 195
- Thanks: 29
wir habens geschafft!! unser 12m18
09 Jan. 2016 11:42
Hallo an alle,
lang hat´s gedauert, nun ist er da unser 12M18 vom Aigner!
Tina, Rhea und Mirko sind schon seit einiger zeit stille Mitleser und einige haben wir ja schon aufm amr treffen und auf der Abendteuer Allrad kennen lernen dürfen. Sorry an alle netten Leute vom amr Treffen, dass wir uns die Nacht morgens um drei still und heimlich vom Acker gemacht haben. Unsere Tochter erblickte diesen Tag das Licht der Welt...
Inzwischen versuchten wir Kontakt nach Holtsee herzustellen! Hier der Hilferuf -
Bitte melden an die netten Leute aus meinem Geburtsort Eckernförde! Leider haben wir euer Auto über die Feiertage nicht gefunden.
Nun zum wichtigen Teil dem Ausbau!
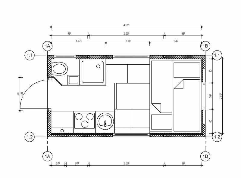
wir haben bis dato nur den Shelter FM II von Zeppelin leer gemacht und sind fleißig an der Grundrissplanung. Diesen fügen wir mal bei und sind über Anregungen von euch dankbar! wir haben uns überlegt den Shelter nochmals mit 20mm Styrodur und 6mm Multiplex Birke zu verkleiden um die Wärmebrücken auszumerzen.
nun schnell noch den Grundriss angefügt und dann das Kind bespaßt
lang hat´s gedauert, nun ist er da unser 12M18 vom Aigner!
Tina, Rhea und Mirko sind schon seit einiger zeit stille Mitleser und einige haben wir ja schon aufm amr treffen und auf der Abendteuer Allrad kennen lernen dürfen. Sorry an alle netten Leute vom amr Treffen, dass wir uns die Nacht morgens um drei still und heimlich vom Acker gemacht haben. Unsere Tochter erblickte diesen Tag das Licht der Welt...
Inzwischen versuchten wir Kontakt nach Holtsee herzustellen! Hier der Hilferuf -
Nun zum wichtigen Teil dem Ausbau!
wir haben bis dato nur den Shelter FM II von Zeppelin leer gemacht und sind fleißig an der Grundrissplanung. Diesen fügen wir mal bei und sind über Anregungen von euch dankbar! wir haben uns überlegt den Shelter nochmals mit 20mm Styrodur und 6mm Multiplex Birke zu verkleiden um die Wärmebrücken auszumerzen.
nun schnell noch den Grundriss angefügt und dann das Kind bespaßt
Bitte Anmelden oder Registrieren um der Konversation beizutreten.
- janseiner
-
- Benutzer
-
- Beiträge: 119
- Thanks: 36
Re: wir habens geschafft!! unser 12m18
09 Jan. 2016 17:24
Hallo Mirko hab Dir eine PN geschrieben
Jan
Jan
Bitte Anmelden oder Registrieren um der Konversation beizutreten.
- Daktari
-
- Benutzer
-
- Beiträge: 777
- Thanks: 96
Re: wir habens geschafft!! unser 12m18
09 Jan. 2016 17:28
Hallo Prahl
Du hast bestimmt die Lösung Hubbett mit den Stockbetten hier im Forum Beitrag gesehen.
Das ist echt ne geile Lösung. Du musst bedenken das ein bisschen räumlicher Abstand zwischen Kinder- und Erwaschenen Schlafplatz manchmal ganz gut ist.
Die Kinder werden älter und schlfen nicht mehr so fest. 
In meinem letzten Womo hatte ich im Alkoven Schiebetüren. Bei deiner Lösung mit dem Festbett vorne auch gut realisierbar. Ein bisschen Privatsphäre.

Gruß Norbert
Du hast bestimmt die Lösung Hubbett mit den Stockbetten hier im Forum Beitrag gesehen.
Das ist echt ne geile Lösung. Du musst bedenken das ein bisschen räumlicher Abstand zwischen Kinder- und Erwaschenen Schlafplatz manchmal ganz gut ist.
In meinem letzten Womo hatte ich im Alkoven Schiebetüren. Bei deiner Lösung mit dem Festbett vorne auch gut realisierbar. Ein bisschen Privatsphäre.
Gruß Norbert
Bitte Anmelden oder Registrieren um der Konversation beizutreten.
- prahl
-
Autor
- Benutzer
-
- Beiträge: 195
- Thanks: 29
Re: wir habens geschafft!! unser 12m18
10 Jan. 2016 18:55
Moin zusammen,
danke schon mal vorab für die raschen Antworten. Haben heute ein wenig Zeit gefunden und unseren Grundriss mal verfeinert. Hängt anbei.....
Als Bett haben wir uns ein Stockbett gedacht, wobei sich das obere auf die Hälfte zusammenschieben lässt. Haben das mit dem Hubbett auch schon angedacht, aber verworfen weil wir Tisch und Bett gleichzeitig nutzen wollten. Hat bei unserem jetzigen Womo super geklappt. Was haltet ihr von einer Lichten zwischen den Betten von 55 cm???
Gibt es einen von euch Selbstausbauern welcher noch Teile zu verkaufen hat? Dann bitte gerne per PN melden.
danke schon mal vorab für die raschen Antworten. Haben heute ein wenig Zeit gefunden und unseren Grundriss mal verfeinert. Hängt anbei.....
Als Bett haben wir uns ein Stockbett gedacht, wobei sich das obere auf die Hälfte zusammenschieben lässt. Haben das mit dem Hubbett auch schon angedacht, aber verworfen weil wir Tisch und Bett gleichzeitig nutzen wollten. Hat bei unserem jetzigen Womo super geklappt. Was haltet ihr von einer Lichten zwischen den Betten von 55 cm???
Gibt es einen von euch Selbstausbauern welcher noch Teile zu verkaufen hat? Dann bitte gerne per PN melden.
Bitte Anmelden oder Registrieren um der Konversation beizutreten.
- prahl
-
Autor
- Benutzer
-
- Beiträge: 195
- Thanks: 29
Re: wir habens geschafft!! unser 12m18
10 Jan. 2016 18:56
Sorry, meine Tochter hat mitgemischt und das wichtigste gelöscht.....
Danke soweit in die Runde und beste Grüße aus Hamburg
Tina, Rhea und MIrko
Danke soweit in die Runde und beste Grüße aus Hamburg
Tina, Rhea und MIrko
Bitte Anmelden oder Registrieren um der Konversation beizutreten.
- prahl
-
Autor
- Benutzer
-
- Beiträge: 195
- Thanks: 29
Re: wir habens geschafft!! unser 12m18
31 Jan. 2016 12:01
Hallo,
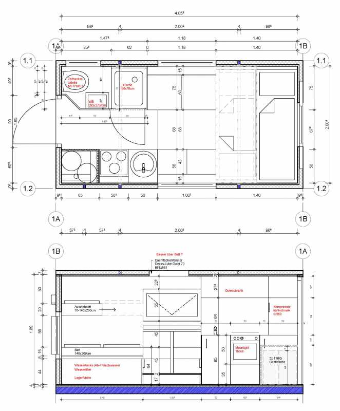
nun der endgültige Grundriss anbei, im April soll es mit dem Ausbau los gehen!
Grüße aus Hamburg bzw. Braunschweig (dort steht der 12m18/wird ausgebaut)
nun der endgültige Grundriss anbei, im April soll es mit dem Ausbau los gehen!
Grüße aus Hamburg bzw. Braunschweig (dort steht der 12m18/wird ausgebaut)
Bitte Anmelden oder Registrieren um der Konversation beizutreten.
- Harty
-
- Benutzer
-
- Steyr 12M18
- Beiträge: 550
- Thanks: 147
Re: wir habens geschafft!! unser 12m18
31 Jan. 2016 15:37
Hallo Mirko,
wie jetzt: Hamburg/Braunschweig
wenn dein Steyr in Braunschweig ausgebaut wird, würde ich dich gerne hier in BS mal treffen,
Eventuell könnten wir uns bzgl. Ausbau mal abstimmen.
Bitte melde dich mal bei mir per PN.
Gruß
Hartmut
wie jetzt: Hamburg/Braunschweig
wenn dein Steyr in Braunschweig ausgebaut wird, würde ich dich gerne hier in BS mal treffen,
Eventuell könnten wir uns bzgl. Ausbau mal abstimmen.
Bitte melde dich mal bei mir per PN.
Gruß
Hartmut
Bitte Anmelden oder Registrieren um der Konversation beizutreten.
- steyrmeier
-
- Benutzer
-
- Beiträge: 519
- Thanks: 79
Re: wir habens geschafft!! unser 12m18
31 Jan. 2016 16:59 - 31 Jan. 2016 17:01
Hallo,
Wir bauen zu zweit in Lüchow , im Landkreis Lüchow -Dannenberg , in meiner Halle mit Portalkran, Holzwerkstatt und Kfz Werkstatt im Haus , wenn ihr Interesse am der goldenen Mitte habt....
2x 12m18 , 1x shelter , 1x Selbstbau Kabine.
Die Halle hat 800m , da ist n8ch bisschen Platz. ...
Gruß Markus
Wir bauen zu zweit in Lüchow , im Landkreis Lüchow -Dannenberg , in meiner Halle mit Portalkran, Holzwerkstatt und Kfz Werkstatt im Haus , wenn ihr Interesse am der goldenen Mitte habt....
2x 12m18 , 1x shelter , 1x Selbstbau Kabine.
Die Halle hat 800m , da ist n8ch bisschen Platz. ...
Gruß Markus
Letzte Änderung: 31 Jan. 2016 17:01 von steyrmeier.
Bitte Anmelden oder Registrieren um der Konversation beizutreten.
- prahl
-
Autor
- Benutzer
-
- Beiträge: 195
- Thanks: 29
Bitte Anmelden oder Registrieren um der Konversation beizutreten.
- Harty
-
- Benutzer
-
- Steyr 12M18
- Beiträge: 550
- Thanks: 147
Re: wir habens geschafft!! unser 12m18
31 Jan. 2016 20:35
Hallo Markus,
vielen Dank für dein Angebot. Wir beide haben uns bereits schon kennen gelernt.
Ich war mit Noel mal bei dir. Aber Lüchow ist doch schon eine Ecke weg von BS und außerdem habe ich ja bereits ein Montageplatz. Mir geht es um Synergieeffekte und um den Austausch von technischen Details.
Gruß
Hartmut
vielen Dank für dein Angebot. Wir beide haben uns bereits schon kennen gelernt.
Ich war mit Noel mal bei dir. Aber Lüchow ist doch schon eine Ecke weg von BS und außerdem habe ich ja bereits ein Montageplatz. Mir geht es um Synergieeffekte und um den Austausch von technischen Details.
Gruß
Hartmut
Bitte Anmelden oder Registrieren um der Konversation beizutreten.
Ladezeit der Seite: 1.148 Sekunden